Structure, material & design

After completing my Bachelor of Arts in Architecture at the University of Applied Sciences Aachen, I pursued a Master of Arts in Corporate Architecture at the University of Applied Sciences Cologne. During my master’s program, I had the exciting opportunity to spend a semester at the Polytechnic University of Valencia through the Erasmus program. In the final semester of my bachelor’s, I also began working at HPP Architekten in Düsseldorf, where I participated in various competitions and contributed to the design of buildings for different uses and clients.

 

Below are some of my favorite projects so far.

HPP - competition department (2021-2024)

  • Behrens-Ufer Berlin

    The Behrens-Ufer Berlin project divided the large, historic industrial complex into multiple architecture competitions to redevelop the block with new functions and activities.

     

    Our building for this competition presented a unique challenge, featuring vertical farming integrated with offices and labs, as well as public areas such as a market, a restaurant, and a sky bar.

     

    In this project, I contributed to the internal distribution of the program and facade design. I was also responsible for the building's 3D modeling and helped investigate and make decisions about the general design and structure.

    Project gallery:

  • Pina Bausch Zentrum

    For the Pina Bausch Zentrum competition, I contributed to the second design phase for the cultural center. The project involved connecting the new representative building to the existing theater and incorporating additional functions such as an archive, visitor center, and outdoor stages for dance and choreography.

     

    During this project, my primary responsibilities included developing the parametric facade design and general 3D modeling. For the facade, I aimed to integrate the rhythm of popular dance styles with the theatrical essence of Pina Bausch. The result was a curtain-like facade that partially conceals the zig-zag truss structure of the block-shaped building.

    Project gallery:

  • Neubau Justizzentrum Köln

    The first project I worked on full-time as a student at HPP was the competition for the new Justice Court Center in Cologne. This initial phase of the larger competition focused on city planning and the general shape of the building.

     

    A significant question during the project was whether to design a high-rise, given the typology of the existing building. Ultimately, we decided on a flatter typology to convey a sense of equality and create a more harmonious complex with its surroundings.

     

    In this project, my primary responsibilities included developing the internal program and the building's general volume. I also contributed to 3D modeling and visualizations.

    Project gallery:

UPV Valencia - erasmus semester (2023-24)

  • Viviendas cadiz 74

    During my Erasmus semester at UPV in Valencia, Spain, our major subject was divided into two projects. The first part involved designing two residential buildings connected by an inner courtyard.

     

    Our project aimed to create a democratic use of the courtyard, integrating access for cars and other vehicles by designing an open garage with a park and a community garden on the rooftop.

     

    My primary contributions to this project included developing the quality of the courtyard and the garage. I was also responsible for the visualizations and 3D modeling.

    Project gallery:

  • Nave deportiva

    The sports hall in the old Ership storage building was the second part of the major subject during my Erasmus semester in Valencia.

     

    The challenge here was to adapt the old building into a modern sports center, considering new and sustainable ways to meet its energy demands.

     

    For the general concept, we aimed to create a less invasive inner structure for the upper levels and rooms, using a house-in-house approach. The rooftop features passive air circulation, and the parametrically designed south facade serves as sun protection and a double skin for passive airflow.

    Project gallery:

  • Pabellon RCube

    Project gallery:

    During the parametric design major, I worked independently to design a pavilion structure intended to be placed on top of the university's emblem within the campus.

     

    My main idea was to create a playful geometry by combining the square delineation of the pavilion's location with the circular shape of the emblem.

     

    From this geometry, the volume was sliced multiple times to create the structure, while a path and an hourglass shape were carved out to provide light and access through the pavilion.

TH-KöLN - M.A. corporate Architecture (2022-2024*)

  • Capela Nova

    Capela Nova is a pavilion designed for a revitalization complex in Salto, São Paulo, Brazil. This project is part of the city's revitalization plan and was developed as a competition entry at the university.

     

    The concept was to use the rebirth symbolism observed in the moon phases as an analogy for the city's revitalization, representing a second chance for its inhabitants, many of whom have a criminal or marginal past.

     

    For the structure, I used the round form of the lake as a starting point and extruded a cone from that, shaping the roof. The main arc delineates the pavilion's opening to the natural landscape, inviting visitors to discover the view. Bamboo was chosen as the primary material due to its abundance in the nearby region and its flexibility for the project.

    Project gallery:

  • Rubino bramante

    ReUse Italy is an initiative aimed at restoring and reutilizing old ruins in Italy through open competitions. This particular project focused on the Nymphaeum Bramante in Genazzano, Rome.

     

    As part of another speed design project at the university, which also doubled as a real competition, I approached the task with a dualistic architectural concept. The remaining structure remains largely untouched, while a modern prosthesis is placed above and between the ruins. This creates a contrast between past and future, preserving the original concept of the Nymphaeum while introducing the possibility of integrating modern architecture.

    Project gallery:

  • Spacial Dreams

    In the Spatial Dreams project, we were tasked with creating virtual spaces and exploring the concept of the absurd. Below are two of my creations from the first semester at the university.

     

    In one project, I explored the use of virtual space to reinterpret the characteristics of a real-world building. Specifically, I recreated the Museum of Applied Arts in Cologne (MAKK) as an island within an urban environment.

     

    In another project, I designed an imaginary room situated in a remote location, allowing the ocean to flow into the space. I experimented with various design elements and their impact on sensory perception, such as the red wall and the partial facade.

     

    Below, you can view a 360° rendering of the imaginary room.

    360° Image

    Project gallery:

  • Forgotten lines

    During the second week of January 2023, we organized an exhibition at the Museum of Applied Arts in Cologne (MAKK), focusing on the museum's architectural evolution. My contribution involved analyzing and representing the floor plans of the building, reflecting the changes it underwent due to post-war reconstructions.

     

    To achieve this, I developed a 3D model of selected sections of the building's walls and superimposed it onto the actual exhibition hall. Visitors were able to experience this comparison through a VR device, which displayed an augmented reality projection of the 3D model. Additionally, a VR image of the room was available for those interested in exploring the changes from another perspective.

     

    Below, you can view the VR image of the room.

    360° Image

    Project gallery:

FH-AACHEN - B.A. Architecture (2019-2022)

  • B-Haus (BA Thesis)

    Project gallery:

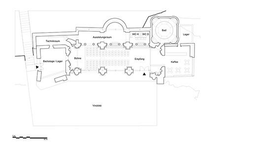
    For my bachelor thesis, I designed a cultural center situated in Burtscheid Park, Aachen. My design process involved analyzing the circulation patterns both within and around the park to determine the optimal location and form for the building.

     

    The cultural center is organized across four floors and includes a library, co-working spaces, an art gallery, a cafeteria, and an event area on the rooftop.

     

    The fluid, curved design of the building pays homage to Aachen's water culture and its historical thermal springs. The facade features elements that reflect natural phenomena, such as the caustic effects of water and the flow of wind.

  • Folium (5.Sem)

    Project gallery:

    This project focused on designing an energy-efficient building. The objective was to plan an additional floor on top of our university's building to generate sufficient energy for a technology development center. I chose to harness solar energy, leading to the creation of FOLIUM.

     

    The concept was inspired by plant leaves, specifically those of cannabis and avocado. These natural forms are reflected in both the facade design and the blind modules of the building.

  • Torso (4.Sem)

    During the fourth semester, we designed a sports center for the students at our university, with a focus on structural innovation. My concept for this project, while simple, was both unique and engaging. I began by analyzing the core elements of the project, recognizing that the most critical component of a sports center is the human body.

     

    I conceptualized the building's structure to reflect anatomical elements: the ribcage served as the main structural framework, the lungs were represented by the gym and other rooms, and the heart was designed as the information point. The spectator seating was designed to follow the organic curvature of the building, enhancing its dynamic quality. For the roof, we utilized ETFE pillows, which effectively mimicked the appearance of inflating lungs and body cells.

    Project gallery:

  • Nordstern (6.Sem)

    In Germany, coal extraction remains a significant energy source, resulting in extensive pits that, though environmentally challenging, create striking and unique landscapes. For this project, I designed a landmark for the Garzweiler region to reflect the area's industrial heritage.

     

    The centerpiece of the design is a large star-shaped tower, inspired by the shape of a Kohlenbagger, the massive excavator used in coal extraction. I simplified its form into a star and integrated it into a dual-tower structure connected by a bridge.

     

    One arm of the tower faces the city, while the other points toward the pit, symbolizing the connection between the historical impact of coal mining and the present excavation activities. The structure is primarily constructed from steel, featuring an observation platform on one tower and a staircase on the other.

     

    Project gallery:

  • Origami Pavillon (4.Sem)

    In this project, I designed a concert stage for Aachen, conceptualized as a pavilion situated above the original water fountain. My design drew inspiration from the work of architect Gottfried Böhm, particularly his churches, influencing both the structure and material choices.

     

    To test the stability of the design, I constructed a cardboard model of the pavilion. The model successfully supported a load of books, demonstrating its structural integrity.

    Project gallery:

DEVELOPED BY